土屋ホーム

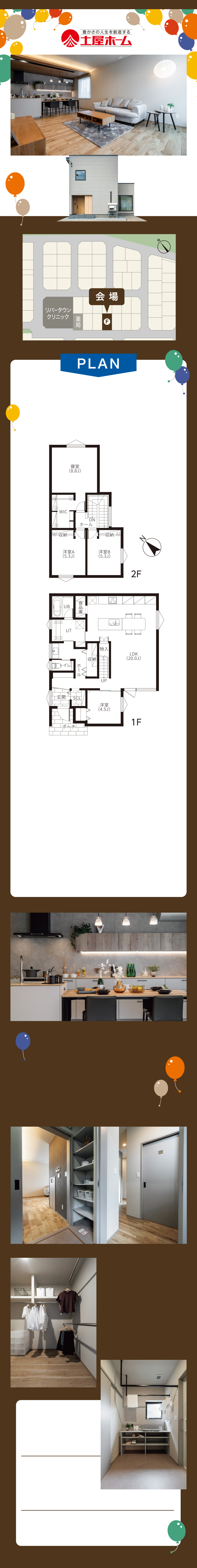
リビング天井高約2.6m
回遊動線や収納計画に
こだわった家

●1F/71.83㎡(21.68坪)
●2F/45.54㎡(13.74坪)
●Total/117.37㎡(35.43坪)

※プラン図は図面を基に描いておりますので、
実際と多少異なる場合があります。
※建物の背景及び植栽はイメージです。

物件についての詳細はコチラ

暖かみのある
グレイトーンの
インテリアに、
間接照明のアクセント。
昼に夜に、日々暮らす
満足感が光の下に
深まる住まいです。

パントリーや
シューズクロークなど
生活動線に効率的に
配置した収納が、
整頓された衛生的な
暮らしをお手伝いします。

基礎断熱+ダブル
断熱、全館空調計画
換気で、いつどこに
いても快適な家。

Graftektの、
まるで家具のような
キッチンとダイニング
で家事をシェア。

独立した水まわり空間で毎日の身支度も
効率的に。

土屋ホーム

土屋ホーム 旭川支店

旭川市4条西2丁目2番地3 土屋ホーム旭川4条ビル2階

0120-336-999

見学予約フォーム

※ご入力いただいた個人情報につきましては厳正に管理し、予約の管理他、 本イベント実行委員会の分析資料として利用後は破棄させていただきます。